Exposè

Gemütliche Dachgeschosswohnung in Dortmund-Wellinghofen (Erbbaurecht)

Objektbeschreibung

44265 Dortmund

Objektbeschreibung

Diese gemütliche Dachgeschosswohnung in ruhiger Lage von Dortmund-Wellinghofen bietet Ihnen ein behagliches Zuhause mit solider Ausstattung. Die Wohnung befindet sich im 2. Obergeschoss eines im Jahr 1985 errichteten und gepflegten 6-Familienhauses. Die Wohnungseigentümergemeinschaft besteht aus insgesamt 15 Wohneinheiten.

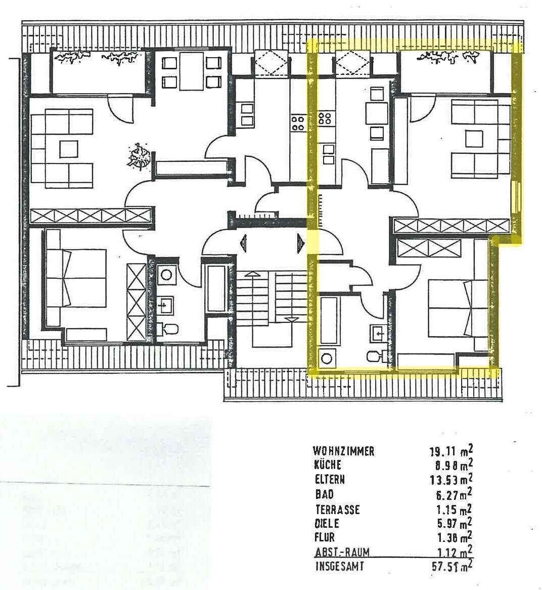
Auf ca. 58 m² Wohnfläche verteilen sich ein helles Wohnzimmer, ein Schlafzimmer, eine Küche mit Einbauküche sowie ein Badezimmer mit Badewanne und Fenster. Im Flur befindet sich ein praktischer Abstellraum. Durch die gute Raumaufteilung eignet sich die Wohnung sowohl für Singles und Paare als auch für Kapitalanleger.

Ein Kellerraum sorgt für zusätzliche Staufläche, und ein eigener Außenstellplatz gehört ebenfalls zur Wohnung. Das Hausgeld beträgt derzeit 211 € monatlich, hierin sind die Heizkosten und die Zuführung zur Instandhaltungsrücklage bereits enthalten. Der jährliche Erbbauzins liegt bei 728,80 €.

Die Wohnung steht aktuell leer und kann daher kurzfristig übernommen werden. Dank der ruhigen Wohnlage in Dortmund-Wellinghofen profitieren Sie von einer angenehmen Nachbarschaft, guter Infrastruktur und einer schnellen Anbindung an die Dortmunder Innenstadt.

Ein Energieausweis liegt derzeit nicht vor, ist aber in Bearbeitung.

Lage

Die Wohnung befindet sich in ruhiger und grüner Lage von Dortmund-Wellinghofen, einem beliebten Stadtteil im Dortmunder Süden. Wellinghofen bietet eine angenehme Wohnatmosphäre mit guter Infrastruktur: Einkaufsmöglichkeiten für den täglichen Bedarf, Schulen, Kindergärten sowie Ärzte sind in der näheren Umgebung vorhanden.

Die Anbindung an den öffentlichen Nahverkehr ist sehr gut – Bus- und U-Bahn-Linien verbinden Sie schnell mit der Dortmunder Innenstadt und den umliegenden Stadtteilen. Auch die Autobahnen A40, A45 und B54 sind in wenigen Minuten erreichbar, sodass sich eine gute überregionale Erreichbarkeit ergibt.

Erholungs- und Freizeitmöglichkeiten bieten nahegelegene Grünflächen und Sportanlagen, die zum Spazieren, Radfahren oder Joggen einladen. Damit vereint Wellinghofen eine ruhige Wohnlage mit einer zugleich zentralen und verkehrsgünstigen Anbindung.

Sonstiges

Für weitere Informationen stehen Ihnen unsere Immobilienberater unter den folgenden Rufnummern zur Verfügung:

Lars Ötting: 0170 - 93 78 255

Horst Adrian: 0177 - 33 92 497

Möchten Sie selbst eine Immobilie verkaufen, sind wir der richtige Partner für Sie. Sprechen Sie uns an. Wir ermitteln kostenlos für Sie den aktuellen Marktwert Ihrer Immobilie!

Hinsichtlich des Objektes ist die Firma Jürgen Kleinert Immobilien e. K. auf die Auskünfte der Verkäufer, Vermieter, Verpächter, Bauherren, Bauträger und Behörden angewiesen. Für die Richtigkeit und Vollständigkeit der Angaben kann keine Haftung übernommen werden. Darüber hinaus kann die Firma Jürgen Kleinert Immobilien e. K. für die Objekte keine Gewähr übernehmen und für die Bonität der Vertragspartner nicht haften.

Dieses Angebot erfolgt sowohl für den Eigentümer als auch für den Interessenten freibleibend. Sofern für das Objekt Gebote eingehen, die die Kaufpreisvorstellung über- oder unterbieten, bitten wir schon jetzt um Verständnis dafür, dass sich die Eigentümer vorbehalten, den Zuschlag zum Verkauf des Objektes einem höheren oder niedrigeren Angebot zu erteilen.

Geldwäschegesetz: Als Immobilienmaklerunternehmen ist die Firma Kleinert Immobilien e.K., Inhaber Oliver Blinne nach §1,2 Abs. 1Nr. 0,4 Abs. 3 Geldwäschegesetz (GwG) dazu verpflichtet, vor Begründung einer Geschäftsbeziehung die Identität des Vertragspartners festzustellen und zu überprüfen. Hierzu ist es erforderlich, dass wir die relevanten Daten Ihres Personalausweises festhalten beispielsweise mittels Kopie. Das Geldwäschegesetz (GwG) sieht vor, dass der Makler die Kopien bzw. Unterlagen fünf Jahre aufbewahren muss.

Objektdaten

  • Objektnummer
  • WE-11366
  • Vermarktung
  • KAUF
  • Objektart
  • WOHNUNG, DACHGESCHOSS
  • Kaufpreis
  • 125.000,00 €
  • Hausgeld
  • 211,00 €
  • Provision
  • 3,57 % inkl. MwSt. inkl. MwSt.
  • Courtagehinweis
  • Die Provision für den Verkäufer beträgt ebenfalls 3,57 % inkl. MwSt. inkl. MwSt.
  • Wohnfläche
  • 58,0 m²
  • Anzahl Zimmer
  • 2,0
  • Anzahl Schlafzimmer
  • 1,0
  • Anzahl Badezimmer
  • 1,0
  • Anzahl Stellplätze
  • 1,0
  • Anzahl der Logia
  • 1,0
  • Baujahr
  • 1985
  • Zustand
  • Gepflegt
  • Frei ab
  • nach Vereinbarung
  • Energieträger
  • Gas
  • Geltende EnEV
  • Liegt bei Besichtigung vor
  • Gebäudeart
  • Wohngebäude

Objektinformationen anfordern

Gewünschte Kontaktart
Grund der Kontaktaufnahme

Fehler:

  • {{err}}
Gewerbeimmobilie mit Stellplätzen und diversen Nutzungsmöglichkeiten in Dortmund-NeuasselnVielseitige Gastronomieimmobilie mit Wohnhaus und großem Entwicklungspotenzial