Exposè

Solides Renditeobjekt mit Altbau-Charme im Gerichtsviertel

Objektbeschreibung

44135 Dortmund

Objektbeschreibung

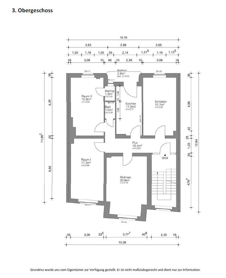
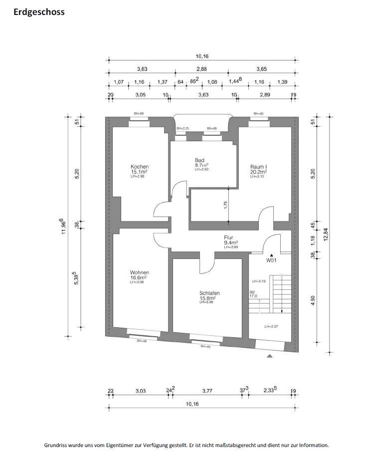
Dieses gepflegte Mehrfamilienhaus mit Altbau-Charme im Dortmunder Gerichtsviertel bietet eine attraktive Investitionsmöglichkeit für Kapitalanleger, die auf der Suche nach einem soliden und bereits vollständig vermieteten Objekt sind. Mit einer großzügigen Wohnfläche von ca. 450 m² verteilt auf 5 Wohneinheiten überzeugt die Immobilie durch eine durchdachte Raumaufteilung und einen gut strukturierten Grundriss.

Das Gebäude steht auf einem Grundstück von 170 m² und befindet sich in einer etablierten Wohnlage im Herzen von Dortmund. Dank der bestehenden Mietverhältnisse profitieren Sie als neuer Eigentümer ab dem ersten Tag von kontinuierlichen Mieteinnahmen, ohne aufwendige Vermarktungsmaßnahmen ergreifen zu müssen.

Die Wärmeversorgung erfolgt über moderne Etagenheizungen mit Gas, die eine individuelle und effiziente Regelung des Heizverhaltens in jeder Wohneinheit ermöglichen. Dies kommt sowohl den Mietern als auch dem Eigentümer zugute, da Heizkosten verursachergerecht abgerechnet werden können.

Highlights auf einen Blick:

- vollständig vermietetes Mehrfamilienhaus mit sofortigem Ertrag
- Wohnfläche ca. 450 m² aufgeteilt in 5 Wohneinheiten
- Grundstücksfläche ca. 170 m²
- individuelle Etagenheizungen mit Gasversorgung
- zentrale Lage in Dortmund mit guter Infrastruktur
- ideale Kapitalanlage mit langfristiger Wertstabilität

Lage

Die Immobilie befindet sich im begehrten Gerichtsviertel von Dortmund – einer der urbansten und zugleich charmantesten Lagen der Stadt. Der Stadtkern ist fußläufig erreichbar, sodass man die vielfältige Gastronomie, erstklassige Einkaufsmöglichkeiten und das pulsierende Stadtleben Dortmunds direkt vor der Haustür genießen kann.

Die Anbindung an den öffentlichen Nahverkehr ist hervorragend: In nur 5 Gehminuten erreicht man die nächste Haltestelle, von der aus man den Dortmunder Hauptbahnhof in lediglich 6 Minuten erreichen. Für Vielreisende und Pendler besonders attraktiv: Der nächste Flughafen ist in nur 17 Fahrminuten erreichbar.

Ob zu Fuß, mit öffentlichen Verkehrsmitteln oder dem Auto – diese Lage bietet maximale Mobilität und Flexibilität im Herzen einer der bedeutendsten Metropolen des Ruhrgebiets.

Sonstiges

Für weitere Informationen stehen Ihnen unsere Immobilienberater unter den folgenden Rufnummern zur Verfügung:

Lars Ötting: 0170 - 93 78 255

Horst Adrian: 0177 - 33 92 497

Möchten Sie selbst eine Immobilie verkaufen, sind wir der richtige Partner für Sie. Sprechen Sie uns an. Wir ermitteln kostenlos für Sie den aktuellen Marktwert Ihrer Immobilie!

Hinsichtlich des Objektes ist die Firma Jürgen Kleinert Immobilien e. K. auf die Auskünfte der Verkäufer, Vermieter, Verpächter, Bauherren, Bauträger und Behörden angewiesen. Für die Richtigkeit und Vollständigkeit der Angaben kann keine Haftung übernommen werden. Darüber hinaus kann die Firma Jürgen Kleinert Immobilien e. K. für die Objekte keine Gewähr übernehmen und für die Bonität der Vertragspartner nicht haften.

Dieses Angebot erfolgt sowohl für den Eigentümer als auch für den Interessenten freibleibend. Sofern für das Objekt Gebote eingehen, die die Kaufpreisvorstellung über- oder unterbieten, bitten wir schon jetzt um Verständnis dafür, dass sich die Eigentümer vorbehalten, den Zuschlag zum Verkauf des Objektes einem höheren oder niedrigeren Angebot zu erteilen.

Geldwäschegesetz: Als Immobilienmaklerunternehmen ist die Firma Kleinert Immobilien e.K., Inhaber Oliver Blinne nach §1,2 Abs. 1Nr. 0,4 Abs. 3 Geldwäschegesetz (GwG) dazu verpflichtet, vor Begründung einer Geschäftsbeziehung die Identität des Vertragspartners festzustellen und zu überprüfen. Hierzu ist es erforderlich, dass wir die relevanten Daten Ihres Personalausweises festhalten beispielsweise mittels Kopie. Das Geldwäschegesetz (GwG) sieht vor, dass der Makler die Kopien bzw. Unterlagen fünf Jahre aufbewahren muss.

Objektdaten

  • Objektnummer
  • WE-11534
  • Vermarktung
  • KAUF
  • Objektart
  • RENDITEOBJEKT, MEHRFAMILIENHAUS
  • Kaufpreis
  • 760.000,00 €
  • Kaufpreis pro m²
  • 1.688,89 €
  • Jahresnettomiete
  • 45.944,52 €
  • Faktor
  • 16,5
  • Provision
  • 4,76 % inkl. MwSt. inkl. MwSt.
  • Wohnfläche
  • 450,0 m²
  • Grundstücksfläche
  • 170,0 m²
  • Gesamtfläche
  • 450,0 m²
  • Anzahl Balkone
  • 1,0
  • Vermietbare Fläche
  • 450,0
  • Anzahl der Wohneinheiten
  • 5,0
  • Baujahr
  • 1910
  • Zustand
  • Gepflegt
  • Energieausweistyp
  • Bedarfsausweis
  • Gültig bis
  • 09.12.2029
  • Energiebedarf
  • 165.87
  • Energieträger
  • Gas
  • Energieeffizienzklasse
  • F
  • Ausstelldatum
  • 10.12.2019
  • Geltende EnEV
  • 2014
  • Gebäudeart
  • Wohngebäude

Objektinformationen anfordern

Gewünschte Kontaktart
Grund der Kontaktaufnahme

Fehler:

  • {{err}}
Zwischen Phoenixsee und Westfalenpark - Mehrfamilienhaus in Do-Hörde3 Häuser - 1 Deal - Dortmund-Körne